選挙ドットコム

高口 ようこ ブログ

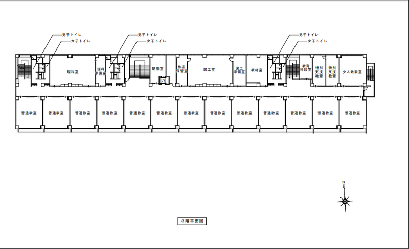
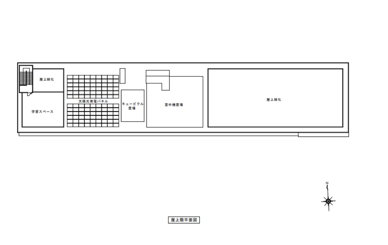
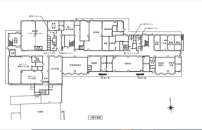
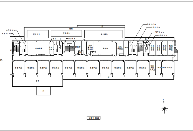
練馬区立上石神井北小学校改築、工事ステップと配置図、設計図、画像でもUPしておきます。

2020/6/3

練馬区立上石神井北小学校改築、工事ステップと配置図、設計図、画像でもUPしておきます。
#練馬区 #練馬区議会 #上石神井北小学校

この記事をシェアする

著者

高口 ようこ

高口 ようこ

選挙 練馬区議会議員選挙 (2027/05/29) - 票
選挙区

練馬区議会議員選挙

肩書 練馬区議会議員
党派・会派 無所属
その他

高口 ようこさんの最新ブログ

高口 ようこ

コウグチ ヨウコ/45歳/女

高口 ようこ

高口 ようこ トップページへ

寄付して応援する

「高口 ようこ」をご支援いただける方は、是非個人献金をお願い申し上げます。
※選挙ドットコム会員登録(無料)が必要です。

月別

ホーム政党・政治家高口 ようこ (コウグチ ヨウコ)練馬区立上石神井北小学校改築、工事ステップと配置図、設計図、画像でもUPしておきます。

icon_arrow_b_whiteicon_arrow_r_whiteicon_arrow_t_whiteicon_calender_grayicon_email_blueicon_fbicon_fb_whiteicon_googleicon_google_whiteicon_homeicon_homepageicon_lineicon_loginicon_login2icon_password_blueicon_posticon_rankingicon_searchicon_searchicon_searchicon_searchicon_staricon_twitter_whiteicon_youtubeicon_postcode