2025/8/4
東大阪市花園ラグビー場第2グラウンドは老朽化しています。そこにサッカーチームのFC大阪が改修の寄付をする問題についてです。
この記事は、問題追及の第8弾です。これまでの経緯をご存じであることを前提にしています。
2025年6月26日、東大阪市役所は、FC大阪に関する記者発表をしました。その発表の場で記者に配付された資料を情報公開請求で入手しましたので、皆様と共有します。
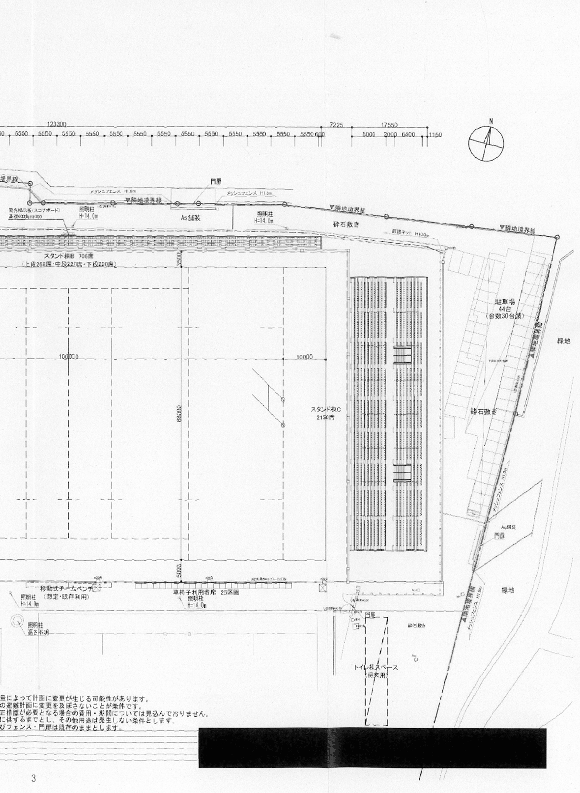
新第2グラウンドの建設計画書が、そのまま、記者に配付された資料になっています。
計画書によりますと、工事は2028年3月末までに完了させることになっています。
建設費用は、15億2千9百万円です。
これを、FC大阪は、2026年から2035年まで10年かけて分割して支払います(下記「費用支払計画」参照)。
「断面図」によりますと、観客席は5,850mmに7列の席が設けられますので、1席当たりの前後の長さは約83㎝です。法令上は、余裕を持って設計されているようです。コトブキシーティング株式会社にイスの規格の情報が掲載されています。













記者発表資料は以上です。
東大阪市、FC大阪の花園ラグビー場第2グラウンド改修計画を受け入れ
以上
この記事をシェアする
ホーム>政党・政治家>前田 弘一 (マエダ ヒロカズ)>花園ラグビー場問題 – 新第2グラウンドの建設計画